• Date: 2021

    Localisation: Bromont, Qc, Canada

    Superficie: 395 m²

    L’équipe: format

    L’intervention débute avec alliance de la chaleur du chalet et le confort de la maison pour créer un espace unique.

    Le projet est conçu en chêne massif, alliant des techniques d'assemblage traditionnelles et contemporaines pour créer une ambiance à la fois unique et accueillante. Destiné à la fois aux activités de plein air et aux rassemblements familiaux, ce lieu a donné naissance à la Maison des Pistes. Située sur un sommet avec un accès direct aux pistes de vélo et de ski, elle offre une vue immersive sur la montagne de Bromont. L’intégration du projet repose sur une conception délicate proposant des gestes horizontaux, visant à minimiser son impact visuel et à l’asseoir avec la topographie naturelle du site.

    La maison est pensée pour que ses espaces de vie se trouvent au dernier étage, maximisant ainsi la vue sur les pistes de ski illuminées durant les nuits d’hiver ou offrant une perspective dégagée sur le coucher de soleil. Cette disposition crée une véritable toile de fond immersive et évolutive au fil des saisons et des moments de la journée. Aux étages inférieur, on retrouve l’appartement principale au rez-de-chaussée pour les propriétaires, ainsi que l’aménagement d’espaces suffisants au rez-de-jardin pour accueillir les 4 enfants de la famille. Cette exigence de superficie a été soigneusement intégrée, en tenant compte des dimensions réduites du site et de la densification élevée du voisinage autour des pistes de ski.

    Le projet englobe la conception, l’exécution, la gestion de projet et la surveillance du chantier. Ce projet sur mesure est minutieusement conçu en collaboration avec les clients.

    Le programme est divisé en trois niveaux :

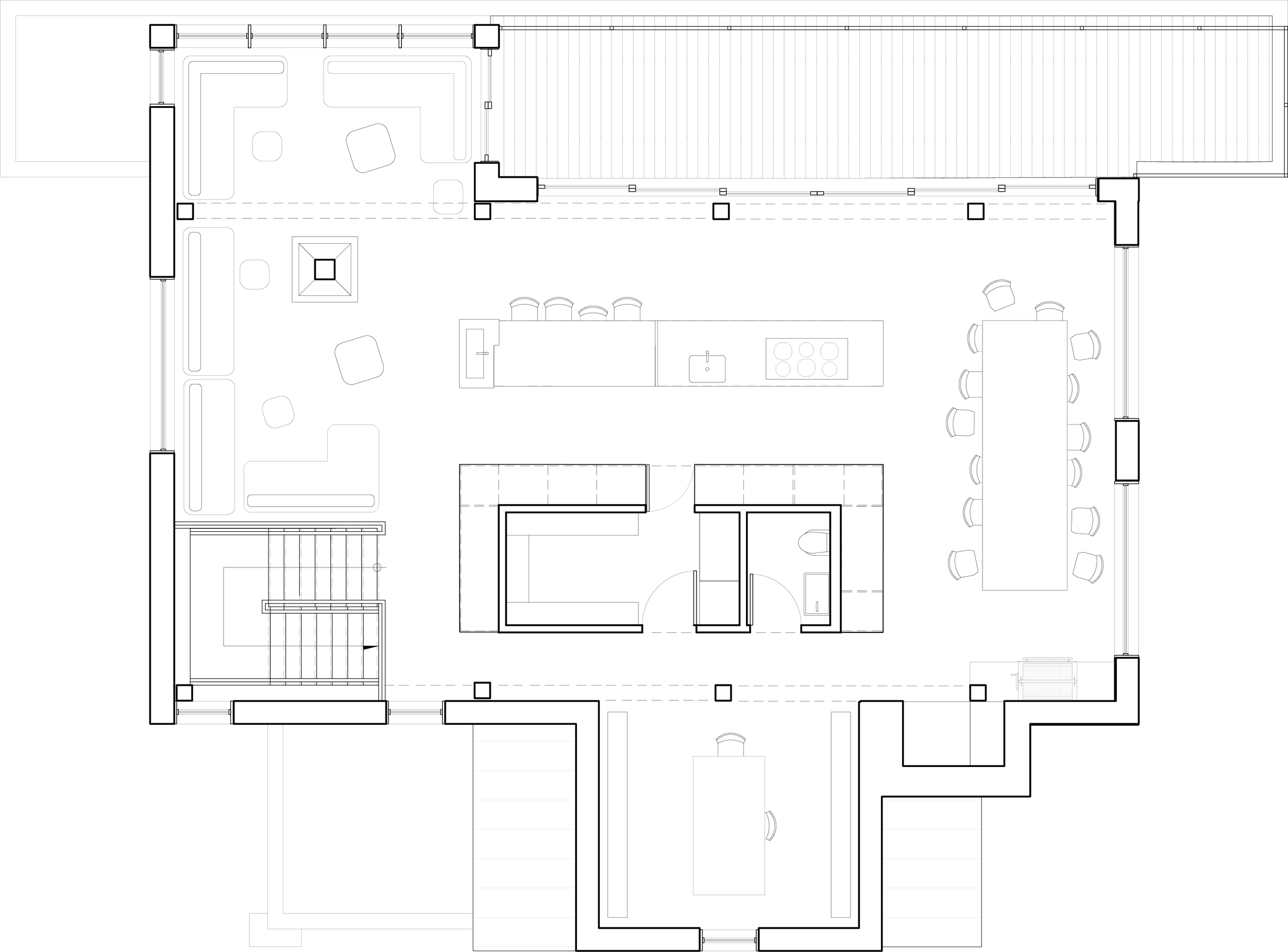
    1. L’étage supérieur est organisé autour d'un plan rectangulaire ouvert sur un plafond de type cathédrale avec un bloc central qui dessert la cuisine et sépare la salle à manger du salon. Autour de ce bloc, on trouve un cellier surplombant la cage d'escalier, une section bar et cuisine reliée au comptoir, ainsi qu'un espace déjeuner face à la salle à manger. On y trouve également des fonctions de garde-manger et de sanitaire. L'escalier, intégré dans le salon, prolonge cet espace vers l'extérieur, offrant une immersion à 360 degrés dans la montagne. Une assise en U permet à la famille de se regrouper dans ce décor immersif, avec un foyer central à quatre versants créant une atmosphère intime et rustique. Tous ces espaces s'ouvrent sur une terrasse, offrant une expérience extérieure en été tout en restant protégés des intempéries.

    2. Le rez-de-chaussée est principalement occupé par un garage double, l’entrée principale, et l’appartement principal, qui comprend un salon, un bureau, une chambre complète, un garde-robe, une salle de bain et une terrasse. L’objectif est de rendre les deux niveaux autonomes : le rez-de-chaussée et l’étage, car le rez-de-jardin est dédié à un appartement pour les enfants des propriétaires. Ainsi, le rez-de-chaussée et l’étage peuvent fonctionner indépendamment du reste de la maison, permettant aux propriétaires de vivre confortablement sans utiliser toute la surface non utilisé lors que la famille réunie.

    3. Le rez-de-jardin comprend les quatre chambres des enfants, chacune avec un accès extérieur et disposées le long d'un corridor. Au centre de ce corridor se trouve un lavabo convivial et deux toilettes symétriques qui permet de minimiser les temps d'attente. Sous le garage, on trouve un cinéma maison ainsi que les locaux techniques. De plus, un espace dédié au sport, accessible directement depuis les pistes de ski et de vélo, sert de mud-room avec des installations pour se changer et des espaces de rangement. Une salle de lavage complète cet étage, le rendant autonome à l'exception des espaces de vie situés au dernier étage.

Maison des Pistes