-
Date: 2026
Localisation: Morin-Heights
Superficie: 190 m²
L’équipe: format
Projet en cours
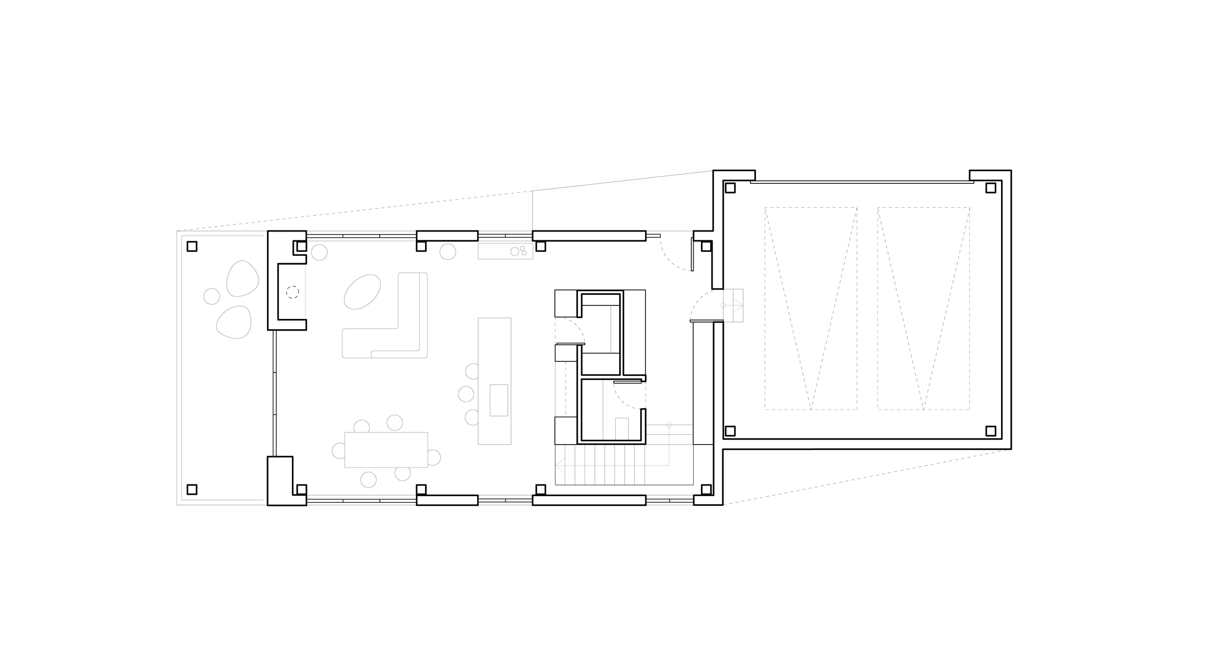
Maison Morin-Heights
Date: 2026
Localisation: Morin-Heights
Superficie: 190 m²
L’équipe: format
Projet en cours
Maison Morin-Heights